CT4DESIGNS

A Project in Hempstead, TX that I made drawing for

Photographs by Personal Touch Photography

duplex
duplex
duplex
duplex
duplex
drawings
drawings
duplex

About: Charles L. Thomas IV

I am a family first guy who believes family is more important than anything else. I was born in Shreveport, La and graduated from Huntington High School in 2003. Sometimes I feel as if I have too many role models in my life but my dad is my biggest role model of all. My dad has face many problems like raising me by himself. I owe half of what I accomplish to him. If I could meet one person for the first time, it would be my mother. My mom died three days after I was born and the stories of how much she was loved by family and friends helped me to understand the importance of family. My goal is to finish the licensing process. I also would like to own my own architecture firm and to also create a nonprofit side business in memory of my mother. I would like to like to create new homes for homeless people similar to St. Jude homes for the holidays. My mother worked hard to help people and I would like to do the same. I’ve attended school at Northwestern University, Louisiana Tech University, Louisiana State University at Shreveport, University of Louisiana at Lafayette, and Prairie View A&M University. At the university of Louisiana at Lafayette campus, I helped brought in a new an organization, The National Organization of Minority Architects Student chapter. NOMA has helped me understand architecture in a different way by teaching me how other cultures respond to architecture. I was vice-president of NOMAS ULL chapter. I am also members of the American Institute of Architects (AIA)- assoc. member id 38292525 and NOMA member.

Projects: 2007-2013

First Year(2007-2008)

This project is part of a large group project. The stars and stripes of old glory are respresented with a partial representation of the stars. The full flag is cut into 24x24 square blocks. Each student has his own piece to replicate the design of his part of the flag square. The only rule is, any line that leads to the end of the square must continue so that each piece when put together will connect together.

Second Year(2008-2009)

This design creates an experiential space for viewers to observe how the phenomenon occurs. The particular phenomenon that I chose is about rainwater and what happens when the rainwater hits a water surface. To achieve this, my rainwater collector will collect water on top and a slow continuous water dropping in the middle of the structure, which will show the phenomenon. Also stepping onto the platform will make the buoys submerge creating the micro waves that are created when rainwater hits water.

Third Year-Fall(2009-2010)

This project is two projects in one, a walkway bridge across a busy street at the edge of ULL campus and a visitor center under the bridge. The walkway is an experiential walkway with sitting and gathering spaces along with areas for shops. The visitor center has to have a women's bathroom and men's bathroom along with an information desk. This project is the first time for rendering and large board design.

Third Year-Spring(2009-2010)

This project is a continuation of project 301. The opposite side of the bridge is the start of this project. The building is a new tower housing the english, language art, psychology, and sociology departments on campus. Students can enter from the second floor connected by the bridge or from the first floor. This design creates an new icon for the university. The first floor has a computer lab and bookstore. The building has two large classroom.

Fourth Year-Fall(2010-2011)

This design creates a laboratory in which students explore the nature of problems and potentials with which architecture is concerned, and experimentally develop methods and processes through which existing urban contexts are transformed into new conditions by means of strategic interventions in a variety of scales. To achieve this each student had to tackle parking, housing for four families, and work towards making their building leed accredited.

Fourth Year-Spring(2010-2011)

Cite Soleil is the largest slum in Haiti and considered the largest slum in the northern hemisphere. Estimates of the population run from 300,000 to 450,000 residents who live deprived of basic services in an area of approximately three square miles. The living conditions defy the imagination of most Americans. Up until recently, there was little or no electricity, little access to clean water, no sewers, small health care, and over populated education facilities. The shantytown has become home to many Haitians as they sought to escape from the countryside. Our project could help the most impoverished to have a sanitary alternative in terms of waste disposal and clean water. The project will allow them to benefit from the trash in rivers, human and animal waste, and create clean water. For the project, we created three phases: Phase One clean up trash in river and waterway by using trash to create new house for people to live in. Also use trash from earthquake. Phase Two clean up human and animal waste with a biogas system Phase Three clean up water with a slow sand filter With all of this in place the people of Site Soleil will have better human well-being. The trash found in the river and streets could be use as building material. The waste will be collected in a large pool, called a bio-digester. But perhaps more importantly, the methane the system will produce can be used as an alternative to coal, easing the serious problems of deforestation in a nation already plagued with daunting internal challenges. It keeps the environment free of organic wastes, is convenient, timesaving and reduces smoke-related illnesses often associated with the use of charcoal. People should exploit decomposing raw materials, which are free. Slow sand filters use biological processes to clean the water, and are non-pressurized systems. Slow sand filters do not require chemicals or electricity to operate.

NOMA student design project(2011)

The visitors' center is themed after the mystical Sankofa bird. The Sankofa is a symbol represented by a unique bird figure whose head is looking backwards as it continues to walk forward. This withholds a powerful message that you must look back to move forward. The site has a vistor center, restaurant, shops, MARTA rail stop, and a large parking lot.

Graduate School- Pre Thesis(2012-2013)

This is my first project at Prairie View A&M University. This project was the warm up project before the start of the thesis in the spring semester. The library’s layout allows for maximum community involvement and children security with an interior separated children’s library. The building layout is designed by the concept of threshold continuing lines. The project creates thresholds with concrete and Kawneer products. By starting with a grid and using the program type of library rooms and uses, the building creates a dynamic space accessible for all users through the north to south cast in place concrete design. Add only east to west glazing, each turn around any corner creates a stunning view. The entrance, at street level, houses the lobby, staff offices, book checkout, book stacks, and bathrooms.

Graduate School- Thesis(2012-2013)

This is my second project at Prairie View A&M University. This project is a design project in Chicago, IL.

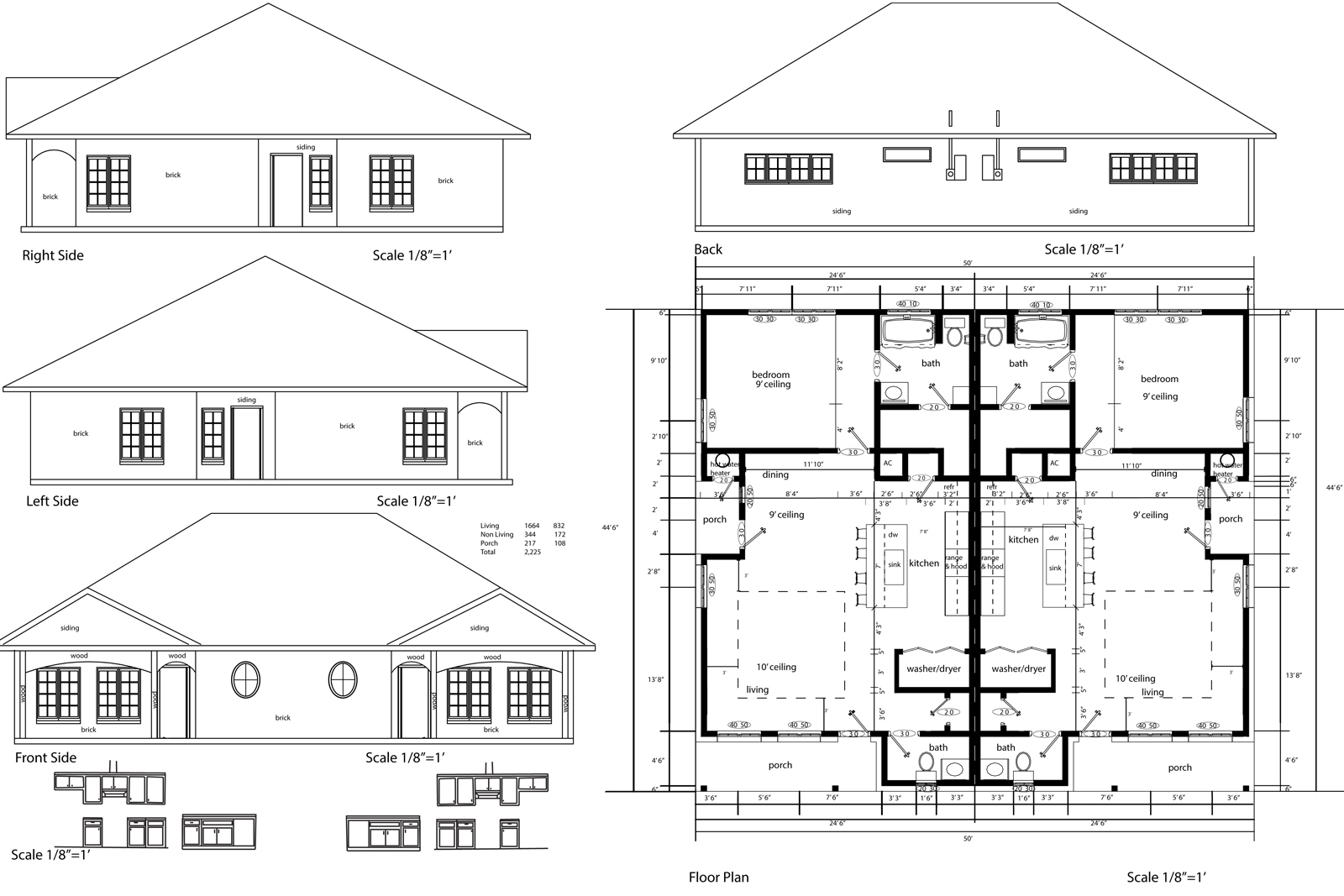
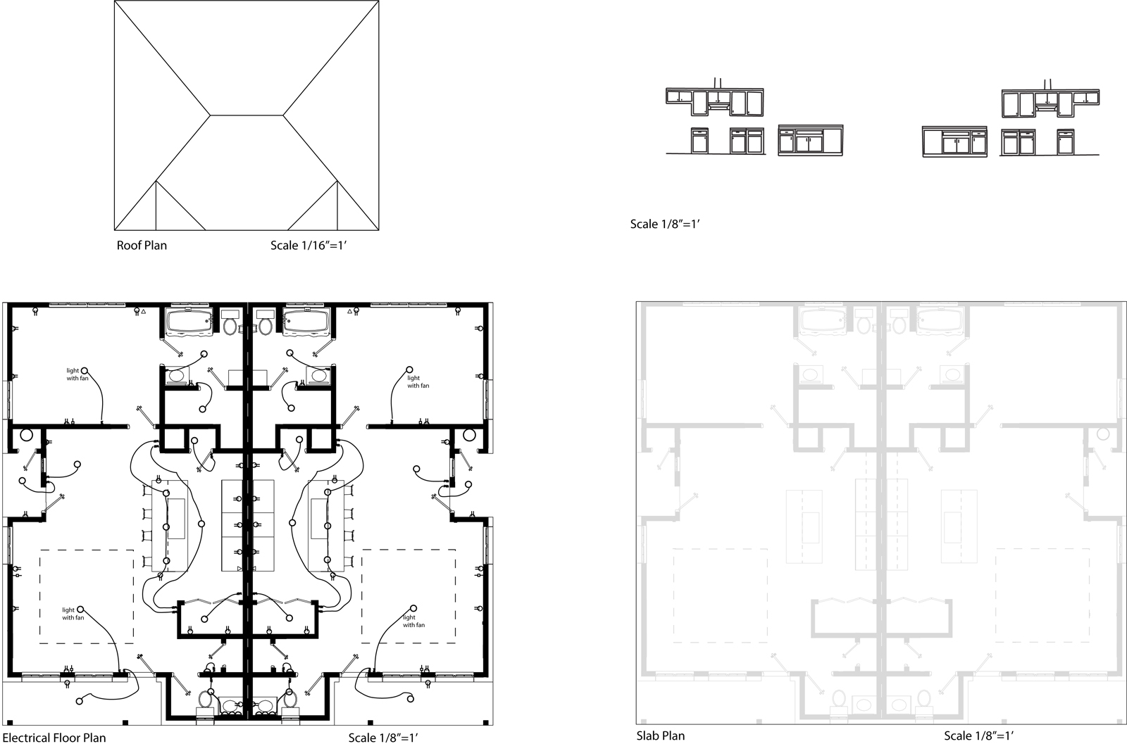
Built Project- Hempstead, TX(2012-2013)

This project was designed for a client in Hempstead, TX. The project call for a new duplex one bedroom building. I worked on getting the new building ready for construction, by designing the building and working drawing for building permits.

Other Projects(2007-2013)

A few cool projects from different years. Construction documents class.

Contact: Charles L. Thomas IV


Facebook Flicker Linkedin Myspace Twitter

Blog

CT4 Blog

26 Dec 2013

I would like to thank all who help me create this website and the pictures of my projects.

Other cool sites

22 May 2011

Section coming soon.